Mobirise Website Builder

3716 Montgomery Rd. Cincinnati, OH 45207

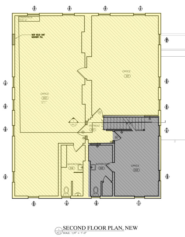
Metro Scooter Building 2 Fl


At the corner of Dana and Montgomery, right on Wasson Way Bike Path, across the street from Xavier University. Approximately 1600 square feet. Includes, two open areas, unisex restroom, kitchenette, and six parking spaces.

CURRENTLY UNAVAILABLE - VACANCY ALERT

No Code Website Builder